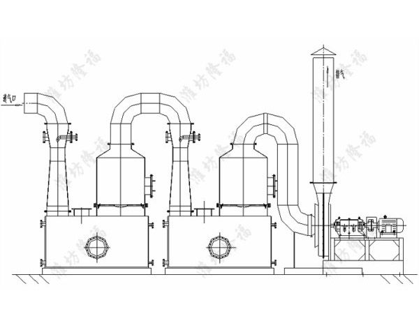
文氏(文丘里)尾氣洗滌器是一種高效濕法除塵器,主要特點是:
a.結構簡單緊湊、體積小、占地少、價格低;
b.既用于高溫煙氣降溫,高溫、高濕和易燃氣體的凈化,也可凈化含有微米和亞微米粉塵及易于被洗滌液吸收的有毒有害氣體如氨氣、二氧化硫、氯化氫、硫酸等。
|
|
|
|
①文丘里洗滌除塵器是一種具有高除塵效率的濕式除塵器。實際應用的文丘里除塵器是一套系統設備,由文丘里洗滌器、除霧器(或氣液分離器)填料洗滌塔,沉淀池和循環水泵等多種裝置所組成。
②文丘里洗滌除塵器的捕集機理與除塵過程
文丘里洗滌除塵器對粉塵的捕集主要是慣性碰撞機理起作用,擴散沉降機理對小于0.1μm的細小粉塵才有明顯的作用。 文丘里洗滌除塵器的除塵包括三個過程:含塵氣流由收縮管進入喉管流速急劇增大,洗滌液(一般為水)通過沿喉管周邊均勻分布的噴嘴噴入,液滴被高速氣流沖擊進一步霧化成更細小的水滴,此過程稱為霧化過程;在喉管中氣液兩相得到充分混合,粉塵粒子與水滴碰撞沉降效率很高。進入擴張管后,氣流降低,靜壓逐漸增大,水滴與粉塵顆粒凝聚成較大的含塵水滴,這一過程稱為凝聚過程。氣體隨后進入除霧器實現了氣液分離,達到除塵目的,這一過程稱為分離除塵過程。霧化過程和凝聚過程是在文丘里管內進行的;分離除塵過程是在除霧器或其他分離裝置如填料洗滌塔中完成的。
凈化后的氣體從除霧器頂部排出,含塵廢水由除霧器錐形底部排至沉淀池。
網址:www.lizaiwu.cn
聯系方式:王總13953699265
孫總 18263637732
| 上一條:青海都蘭茂豐生物有機肥料有限責任公司 | 下一條:脈沖式布袋除塵器 |









