|
|
固液分離后沼渣:
|
|
LNG熱風爐:
|
|
高濕物料烘干工段:
|
|
|
|
尾氣工段:
|
|
從廠區規劃、工藝設計、設備選型、設備制作、設備安裝、試運行直至交付正式投產,濰坊隆福全程跟蹤服務
關于高濕物料烘干機

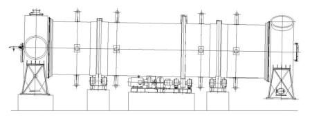
高濕物料烘干機外形圖
高濕物料烘干機可將含水量65%~70%的物料一次烘干至終含水量25%~30%,比較適用于結構疏松的物料(牛糞、豬糞、秸稈、藥渣、稻殼雞糞等)。
高濕物料干燥機前端7~8米處揚料板可將物料無死角的揚起在筒體中間,與來自LNG熱風爐的熱量百分之百接觸,達到熱利用率百分之百的目的,此時物料處于迅速升溫階段;筒體中間段8~18米處的物料處于水分散發階段,散發的水蒸氣被尾部風機吸走;筒體尾部19~26處溫度慢慢降下來,物料水分達到標準。
高濕物料干燥機采用順流烘干工藝;高濕物料烘干機為一橫向轉動的筒體,前后兩套托輪裝置,整套設備操作簡單,維護簡便;筒體外部振打裝置可防治筒體粘壁;筒體前后全密閉,防治粉塵及干燥臭氣溢出車間。
規格 | 筒體 | 生產能力 | 減速機 | 功率 | |||
內徑(mm) | 長度(mm) | 傾角(°) | 轉速(rpm) | ||||
| HG1624 | 1600 | 24000 | 1.5 | 5.1 | -6 | ZQ650 | 15 |
| HG1824 | 1800 | 24000 | 1.5 | 4.5 | -8 | ZQ650 | 18.5 |
| HG2024 | 2000 | 24000 | 1.5 | 4.66 | -10 | ZQ750 | 22 |
| HG2224 | 2200 | 24000 | 1.5 | 3.92 | -16 | ZQ850 | 37 |
| HG2424 | 2400 | 24000 | 1.5 | 3.6 | -18 | ZQ850 | 45 |
| HG2626 | 2600 | 26000 | 1.5 | 3.42 | -20 | ZQ1000 | 55 |
| HG2828 | 2800 | 28000 | 1.5 | 2.81 | -22 | ZL115 | 75 |
網址:www.lizaiwu.cn
聯系方式:王總13953699265
孫總 18263637732
6立方沼渣干燥 2018-11-16 本文被閱讀 1787 次
| 上一條:3萬噸秸稈+菇渣粉狀有機肥 | 下一條:9立方沼渣干燥 |
















